Skip to main content
Image of Alder Hall 103

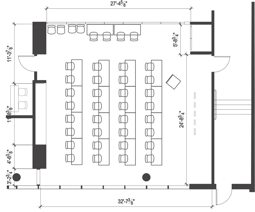
Room type: Meeting or class room

Capacity: 38

Seating: Moveable tables and chairs

Minimum rental: 2 hours

Media equipment: Projector, screen, speakers, laptop connection

Features: Wi-Fi, whiteboard, tack walls

Accessible: Yes

Room Sets:

Standard

Image of Alder Hall 103, Room Set "Standard"

Request meeting space

Please reserve meeting space at least 10 business days in advance and no earlier than one year in advance.

RSO'S, UW DEPARTMENTS, AND OFF-CAMPUS GROUPS

UW community members, including Registered Student Organizations (RSOs), or groups sponsored by the university.

HFS RESIDENTS

All HFS residents are eligible to reserve meeting and study space.

Need Catering? We can help!

A plate of fish and vegetables

Bay Laurel Catering

Bay Laurel Catering, the trusted and embedded caterer at the UW, provides memorable catering for events of all sizes. From boxed lunches to custom elegant events, Bay Laurel Catering excels in bringing your vision to life.

Blueberry muffins on a plate

Café to Go

Café to Go allows you to conveniently order coffee, beverages, pastries, snacks, salads, sandwiches, or cookies for your meeting or engagement.