Skip to main content

Building Type: Academic-year Apartment

Neighborhood: West Campus

UW Campus

Mailing Address:

3927 Adams Lane NE
# 1-234-5 (building + apartment-room number)
Seattle, WA 98105


Agreement Duration: Mid-September through mid-August (Graduate Students Only)

Amenities Nearby:

Area 01, maker and creative space in Maple Hall

Fitness Center West, gym in Elm Hall

Bicycle Storage: Building D, level 3, room D300B; Building E, level 3, room E300B

Options:

Mercer Court buildings D and E are reserved for graduate and professional students and come furnished with full-size beds.

Watch a Virtual Tour:

Experience 360 tours of Mercer Court. Click and drag your mouse (or swipe on mobile) to look around in every direction.

Mercer Court Apartments – Room

Mercer Court Apartments – Bathroom

Mercer Court Apartments – Kitchen

Mercer Court Apartments – Common Area

Bathroom Type: Private

Room Types

# Units Rate
Studio apartment, private bath 25 $1,917/month
Single room in 4-bedroom apartment, private bath 168 $1,662/month
Single room in 5 or 6-bedroom apartment, private bath 78 $1,763/month
12-Month Agreement extension (August 23 – September 13, 2026) $1,674/month

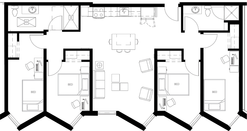
Typical Room Layouts

Four-bedroom apartment, private bath

Image of Four-bedroom apartment, private bath